1
/
of
12
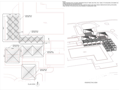
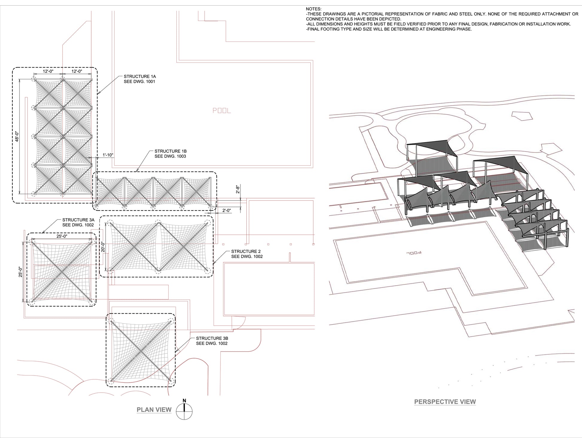
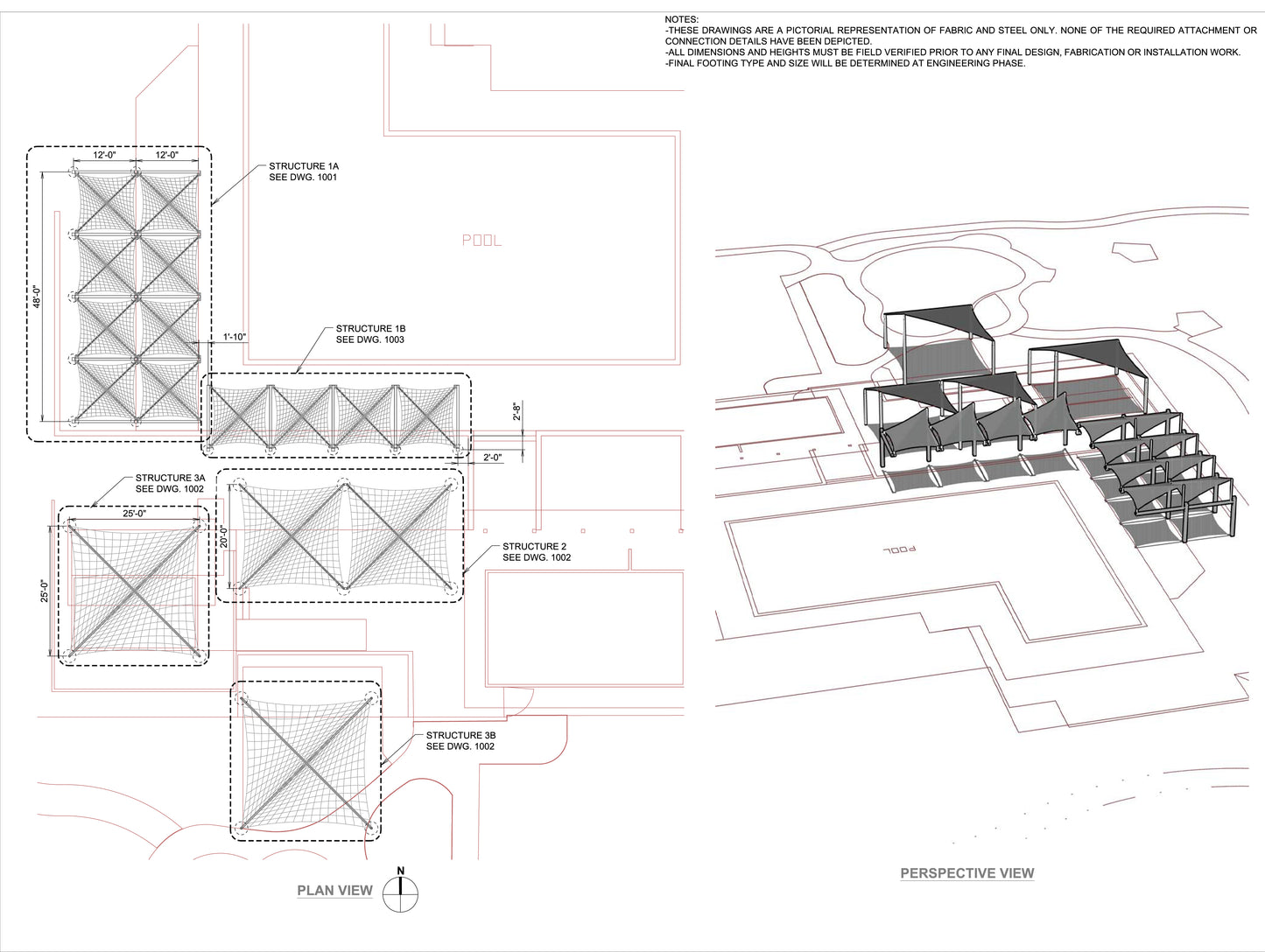
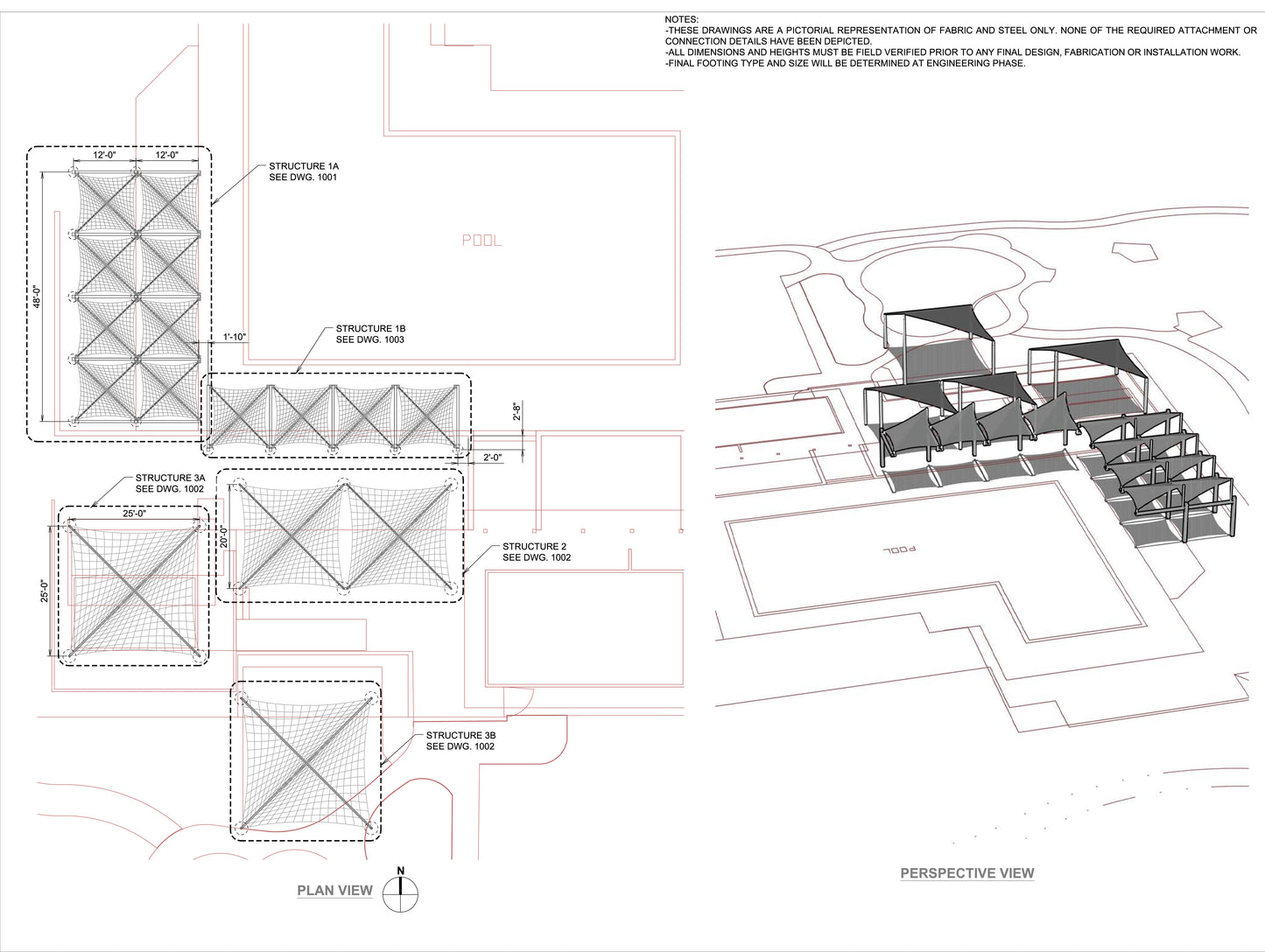
Designed to mimic the look of a wave, our Wave structure features a peak-and-valley shape, making it an ideal choice for aquatic and park areas in need of ample shade. With its visually captivating design and effective sun protection, the Wave structure adds a touch of natural elegance to outdoor environments, making it a top choice for those seeking both appeal and functionality.
WAVE
WAVE
